Skip to main content

Multi-Family

142 E Vernon Ave

142 E Vernon Ave, Los Angeles, CA 90011

Listing Price: $775,000

Lot Size
0.15 acres
Price/Acre
$5,235,577
Land Type
Land
Buildable Square Feet
12,162

Investment Overview

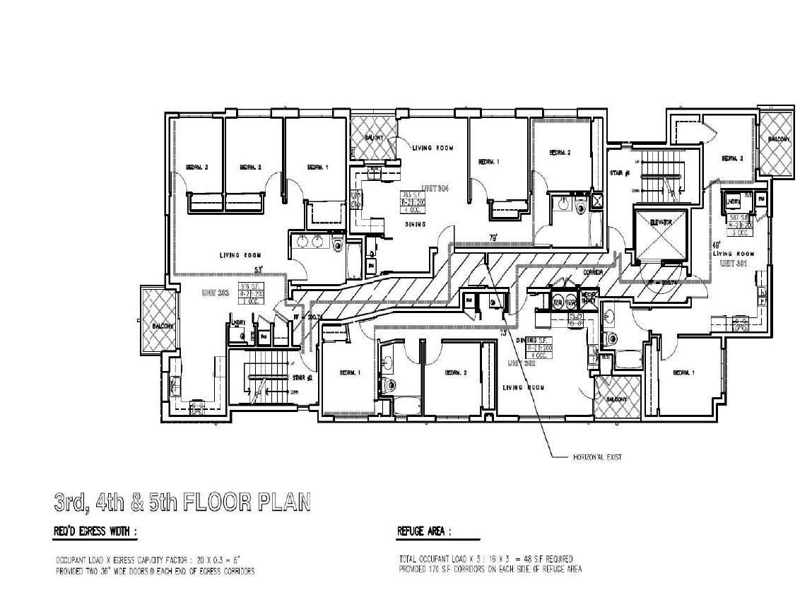
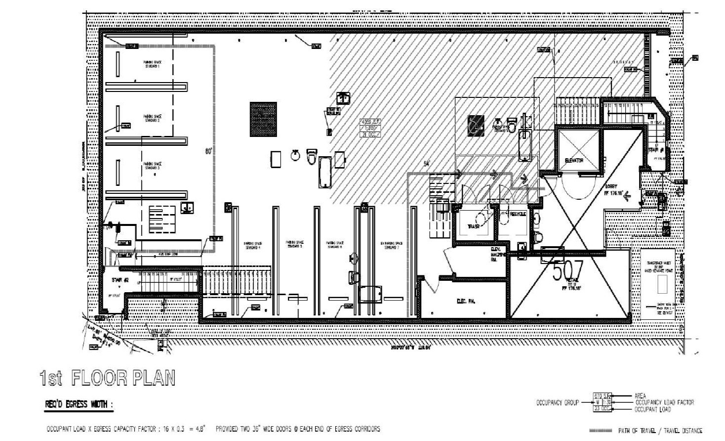
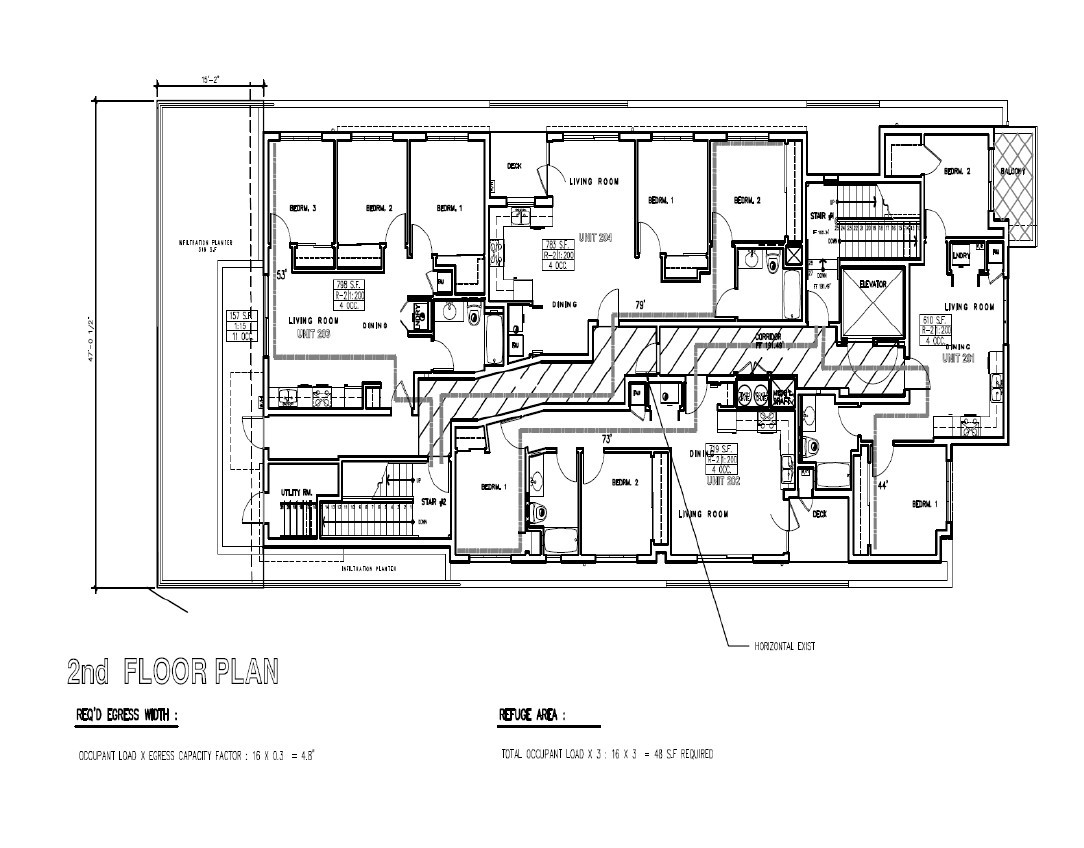
This RTI (Ready-to-Issue) 5-story, mixed-use development features a 4-story residential component consisting of 16 apartment units situated above a street-level podium. The ground floor includes a one-story garage providing parking accommodations for residents and visitors, as well as a 250-square-foot retail space designed to activate the street frontage and enhance the pedestrian experience.

The project has been designed in accordance with Transit Oriented Communities (TOC) guidelines, which allow for certain incentives and bonuses to promote higher-density, mixed-use developments near major transit corridors. The design optimizes both residential livability and commercial viability, aligning with the broader urban planning goals of increasing housing availability and fostering walkable, transit-friendly environments.

Investment Highlights

  • RTI Permits Paid – Seller has pulled and paid approximately $105,000 for RTI permits.
  • Desirable Unit Mix – Project consists of 12 two- and 4 three-bedroom units to attract a diverse tenant base and maximize rental income.
  • On-Grade Parking – Convenient and accessible parking solution, eliminating the need for costly subterranean or structured parking.
  • No Relocation or Demolition Fees – No existing tenants or structures requiring removal, minimizing upfront costs and project complexities.
  • High Rental Demand Area – Strong market demand ensures consistent occupancy rates and attractive rental yields.
  • Convenient Access to 110 & 10 Freeways – Easy connectivity to downtown Los Angeles, surrounding neighborhoods, and key business districts.
  • Proximity to Local Amenities – Close to a variety of shops, restaurants, and essential community services, enhancing livability and tenant appeal.

Exclusively Listed By

Multi-Family

142 E Vernon Ave

Listing Price: $775,000

Lot Size
0.15 acres
Price/Acre
$5,235,577
Land Type
Land
Buildable Square Feet
12,162

Investment Highlights

  • RTI Permits Paid – Seller has pulled and paid approximately $105,000 for RTI permits.
  • Desirable Unit Mix – Project consists of 12 two- and 4 three-bedroom units to attract a diverse tenant base and maximize rental income.
  • On-Grade Parking – Convenient and accessible parking solution, eliminating the need for costly subterranean or structured parking.
  • No Relocation or Demolition Fees – No existing tenants or structures requiring removal, minimizing upfront costs and project complexities.
  • High Rental Demand Area – Strong market demand ensures consistent occupancy rates and attractive rental yields.
  • Convenient Access to 110 & 10 Freeways – Easy connectivity to downtown Los Angeles, surrounding neighborhoods, and key business districts.
  • Proximity to Local Amenities – Close to a variety of shops, restaurants, and essential community services, enhancing livability and tenant appeal.

Investment Overview

This RTI (Ready-to-Issue) 5-story, mixed-use development features a 4-story residential component consisting of 16 apartment units situated above a street-level podium. The ground floor includes a one-story garage providing parking accommodations for residents and visitors, as well as a 250-square-foot retail space designed to activate the street frontage and enhance the pedestrian experience. The project has been designed in accordance with Transit Oriented Communities (TOC) guidelines, which allow for certain incentives and bonuses to promote higher-density, mixed-use developments near major transit corridors. The design optimizes both residential livability and commercial viability, aligning with the broader urban planning goals of increasing housing availability and fostering walkable, transit-friendly environments.

Exclusively Listed By

MM Texture Background
MM Textured Background Lower