Skip to main content

Single-Family

Single Family Development Opportunity - Shovel Ready - 3 Parcels

14003 Dawn Whistle Way, Bowie, MD 20721

Listing Price: $390,000

Lot Size
1.03 acres
Price/Acre
$378,641
Land Type
Land
Buildable Square Feet
43,320

Investment Overview

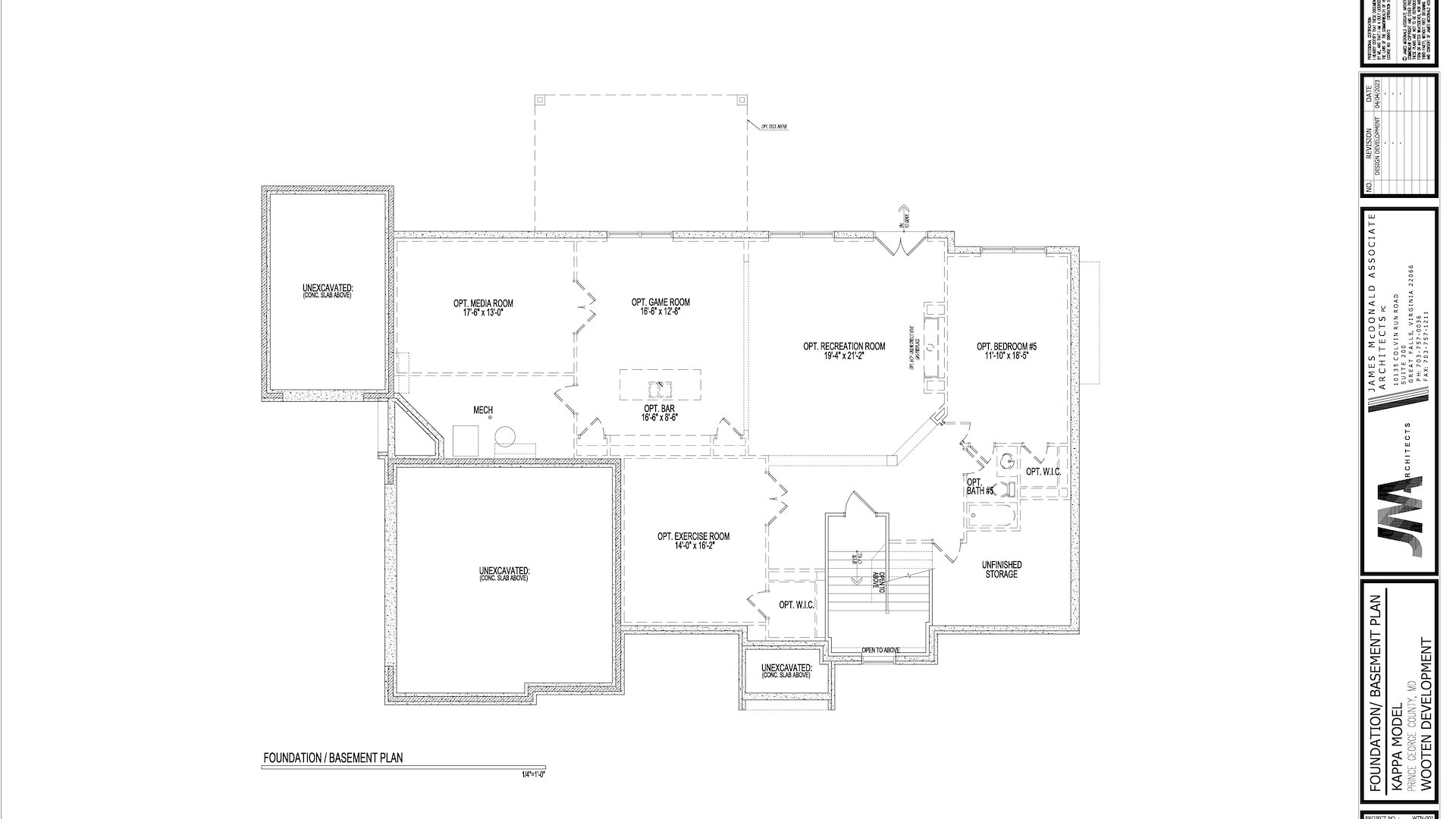
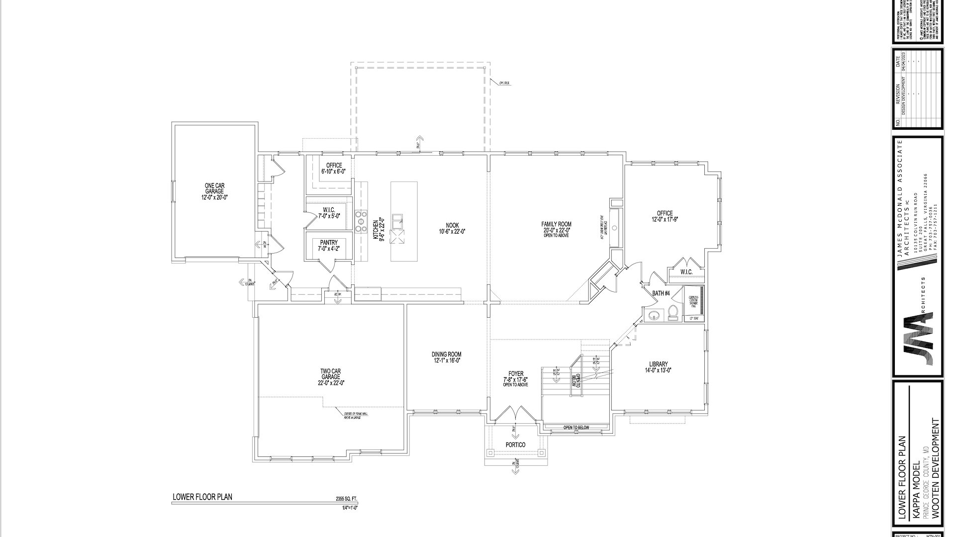
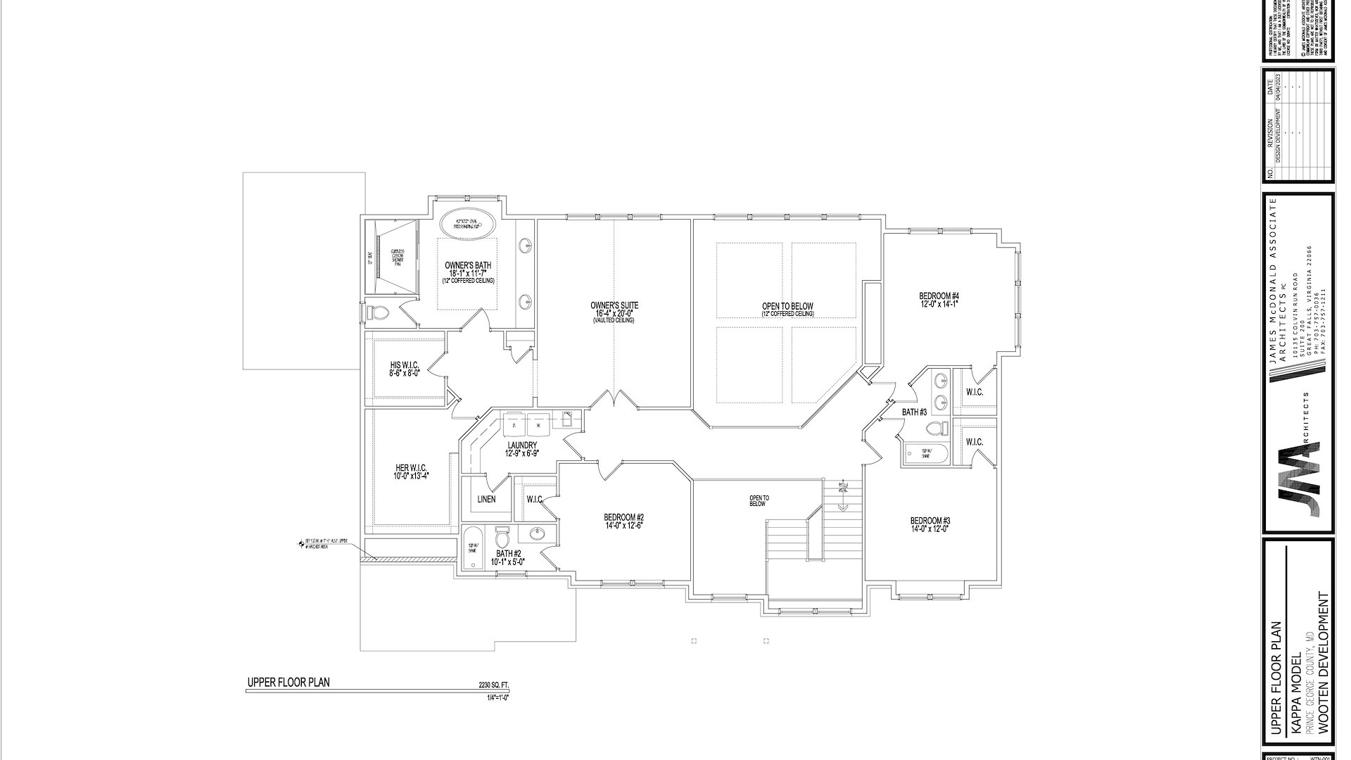
Marcus & Millichap is pleased to represent the owner of a fully entitled one-acre parcel at 14003 Dawn Whistle Way, Bowie, MD in the exclusive Fairview Manor subdivision. This property is cleared and graded, shovel-ready, and it conveys with approved architectural floor plans and an approved building permit, streamlining the path from purchase to construction.

Create your dream home on this premium homesite by building this elegant custom residence approved by the county or choose an alternate custom home design with Timberlake Homes. Timberlake Homes is the designated builder for this lot, offering a seamless and efficient path to building your dream home.

This parcel is approved for the construction of a 6,600-square-foot luxury residence designed by James McDonald of JM Architects, an award-winning architect with more than 100 national and regional accolades. His design for this home emphasizes luxury and individuality at the highest level. Highlights of the home include:
• Five spacious bedrooms, each with walk-in closets
• Five full bathrooms
• Expansive gourmet kitchen
• Finished lower-level recreation room
• 10-foot ceilings
• Three-car garage
• Numerous high-end architectural and design features

Fairview Manor is one of Bowie’s most prestigious communities, defined by grand estate homes situated on parcels of one acre or more. With only one other active builder in the subdivision, this lot offers a rare opportunity for a developer or homeowner to build a distinctive luxury residence that will stand apart as a signature estate.

Situated within Prince George’s County, residents will find themselves only minutes from Route 50, with direct access to Washington, D.C. and Baltimore in just 30 minutes. This convenience allows for a peaceful residential lifestyle while maintaining close proximity to two of the region’s most important economic and cultural centers.

This opportunity appeals to two distinct groups. For developers, the parcel represents a chance to deliver a luxury speculative home in a community where demand for high-end residences continues to grow. For homeowners, it offers the ability to build a semi-custom estate in a neighborhood that has become synonymous with prestige, privacy, and architectural excellence. Whether envisioned as a personal residence or a speculative investment, this site provides a foundation for a truly remarkable home.


Investment Highlights

  • Fully Permitted Residential Lot in Fairway Estates. Building Permit, Engineering Reports and Architectural Plans Transfer with the Purchase of this lot.
  • Build a 4,400 SF Single Family Home with a 2,200 SF Finished Basement. Full Architectural Plans Available
  • Opportunity to Purchase Two Adjacent One Acre Lots, also Fully Permitted.
  • Create your dream home on this premium homesite by building this elegant custom residence approved by the county or choose an alternate custom home design with Timberlake Homes. Timberlake Homes is the designated Builder for these lots.

Exclusively Listed By

  • Lorenzo M. Wooten, CCIM

    Senior Director Investments

    (202) 536-3742

    Email Lorenzo

    License(s): MD: 629911, DC: SP98367898

    Washington, D.C.

Single-Family

Single Family Development Opportunity - Shovel Ready - 3 Parcels

Listing Price: $390,000

Lot Size
1.03 acres
Price/Acre
$378,641
Land Type
Land
Buildable Square Feet
43,320

Investment Highlights

  • Fully Permitted Residential Lot in Fairway Estates. Building Permit, Engineering Reports and Architectural Plans Transfer with the Purchase of this lot.
  • Build a 4,400 SF Single Family Home with a 2,200 SF Finished Basement. Full Architectural Plans Available
  • Opportunity to Purchase Two Adjacent One Acre Lots, also Fully Permitted.
  • Create your dream home on this premium homesite by building this elegant custom residence approved by the county or choose an alternate custom home design with Timberlake Homes. Timberlake Homes is the designated Builder for these lots.

Investment Overview

Marcus & Millichap is pleased to represent the owner of a fully entitled one-acre parcel at 14003 Dawn Whistle Way, Bowie, MD in the exclusive Fairview Manor subdivision. This property is cleared and graded, shovel-ready, and it conveys with approved architectural floor plans and an approved building permit, streamlining the path from purchase to construction. Create your dream home on this premium homesite by building this elegant custom residence approved by the county or choose an alternate custom home design with Timberlake Homes. Timberlake Homes is the designated builder for this lot, offering a seamless and efficient path to building your dream home. This parcel is approved for the construction of a 6,600-square-foot luxury residence designed by James McDonald of JM Architects, an award-winning architect with more than 100 national and regional accolades. His design for this home emphasizes luxury and individuality at the highest level. Highlights of the home include: • Five spacious bedrooms, each with walk-in closets • Five full bathrooms • Expansive gourmet kitchen • Finished lower-level recreation room • 10-foot ceilings • Three-car garage • Numerous high-end architectural and design features Fairview Manor is one of Bowie’s most prestigious communities, defined by grand estate homes situated on parcels of one acre or more. With only one other active builder in the subdivision, this lot offers a rare opportunity for a developer or homeowner to build a distinctive luxury residence that will stand apart as a signature estate. Situated within Prince George’s County, residents will find themselves only minutes from Route 50, with direct access to Washington, D.C. and Baltimore in just 30 minutes. This convenience allows for a peaceful residential lifestyle while maintaining close proximity to two of the region’s most important economic and cultural centers. This opportunity appeals to two distinct groups. For developers, the parcel represents a chance to deliver a luxury speculative home in a community where demand for high-end residences continues to grow. For homeowners, it offers the ability to build a semi-custom estate in a neighborhood that has become synonymous with prestige, privacy, and architectural excellence. Whether envisioned as a personal residence or a speculative investment, this site provides a foundation for a truly remarkable home.

Exclusively Listed By

  • Lorenzo M. Wooten, CCIM

    Senior Director Investments

    (202) 536-3742

    Email Lorenzo

    License(s): MD: 629911, DC: SP98367898

    Washington, D.C.

MM Texture Background
MM Textured Background Lower